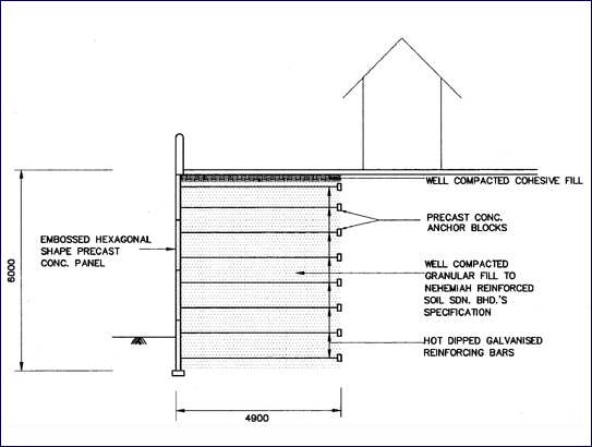
Anchored Earth Retaining Wall for a Residential House in Tanjung Bungah
Client : Private Owner
Consultant : WNG Perunding
Completion : November 1993

A private residential house situated on a hilly area requires that the side slope be steepened by means of a retaining wall so as to increase usable land area on top of the wall. However, the presence of an existing access road at the toe of the slope provided limited access working area, and also any wall construction had to be carried out with minimum disturbance to the neighbourhood. It was also required that the facing of the wall be aesthetically pleasing and provided a good blend to the surrounding. In addition, the wall construction must be economically viable.

Anchored Earth retaining wall was opted to be most viable both from the economic point of view and aesthetics. The construction of Anchored Earth retaining wall was rapid and easy in terms of site mobilisation and erection due to the incremental nature of wall construction. Thus minimum disturbance was maintained. The embossed hexagonal concrete facing provided an aesthetically pleasing finish.

The construction of the 6m high wall using Anchored Earth was completed in 3 weeks. With this construction, usable land area was increased by approximately 5000 sq. ft.

 

Back <

 

 


Copyright © 2010 Nehemiah Reinforced Soil Sdn Bhd. All rights reserved