Nehemiah Wall For Electrified Double Track Project, Malaysia
Client : KTM Berhad
Consultant : Ranhill Bersekutu & Minconsult
Completion : In Progress



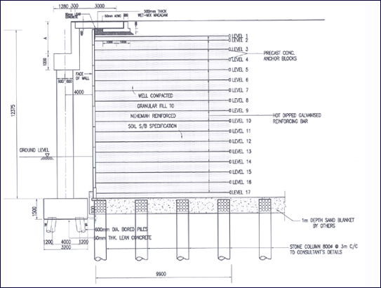
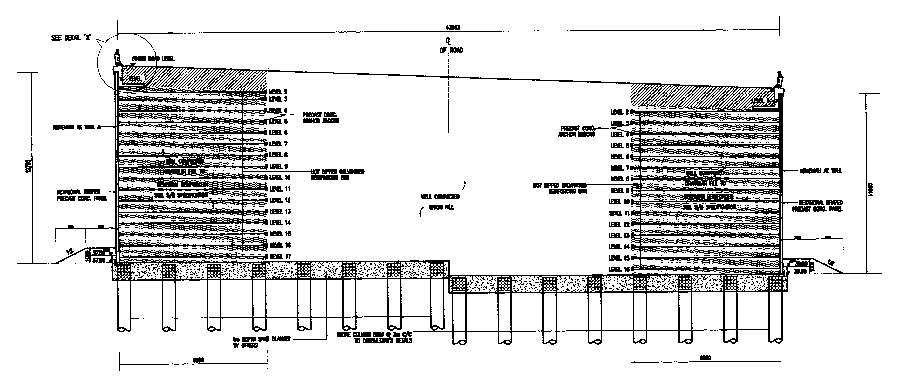
The Electrified Double Track Project between Rawang and Ipoh is a major engineering project that entails the reconstruction of 400 track-km over a route length of 180km. The project requires construction of bridge crossings, replacement and widening of old bridges. Nehemiah wall was extensively used to construct the embankment walls and the abutments to support the bridge. The construction of Nehemiah wall was rapid and the interference with the vehicular and train traffic was minimized due to the "erection from behind" method that was being implemented. The maximum height of the wall was 13.0m. In addition, the embossed panel facings of Nehemiah wall provides an aesthetic finish to the structures. A typical section is shown in the sketch below.

Typical Section Of Abutment Wall

Typical Section Of Embankment Wall

 

Back <


Copyright © 2010 Nehemiah Reinforced Soil Sdn Bhd. All rights reserved